Explore this post with:
Have you heard about the trending farmhouse-style home? The modern farmhouse plans are country-inspired, simple, and rooted in traditional American culture and style. Hence, modern farmhouse plans are a blend of vintage, simplicity, aesthetics, and functionality.
Some of the most striking features of the modern farmhouse are the vaulted family room, barn-style doors, open floor plans, and wood flooring. They add elegance to your style and your space.
So, read along to know all about the modern farmhouse plans that are budget-friendly and you can incorporate into your home as well.
Do You Know How Modern Farmhouse is Different From The Traditional One?
| Traditional Farmhouse | Modern Farmhouse |
|---|---|
| They are generally 2-1.5 storey structure. | These farmhouse plans are also 2-1.5 storey structures but with open floor plans. A single floor is uncommon for them. |
| Grand exterior with a front porch. | Large porch with a mixture of modern and traditional accents. |
| Horizontal sidings of clapboard, wood, vinyl, or fiber cement. | Combination of horizontal and vertical sidings with larger windows. |
| Minimalist decor and furnishings. | Smooth and vertical exterior lines; natural textured flooring; modern furnishing; steel appliances; sleek lighting; and granite countertops. |
What Makes Modern Farmhouse Floor Plans Unique?
15 Distinguishing Elements For You

- These farmhouse floor plans are open and airy.
- Large windows for natural lighting,
- Use of wood as a natural material.
- Classic dormer windows.
- Natural textured flooring.
- Horizontal and vertical sidings.
- Large porches with a rocking chair pair.
- Natural colors like white and grey, with dark windows.
- Accent or metal roofing for a rustic look.
- Large kitchen with a kitchen island for family gatherings.
- Huge walk-in pantry.
- Grand living room.
- Breakfast nook.
- Separate mudroom.
- Special American-style “Barndominium,” or modern barn.
Top 10 Modern Farmhouse Plans Ideas and Inspiration
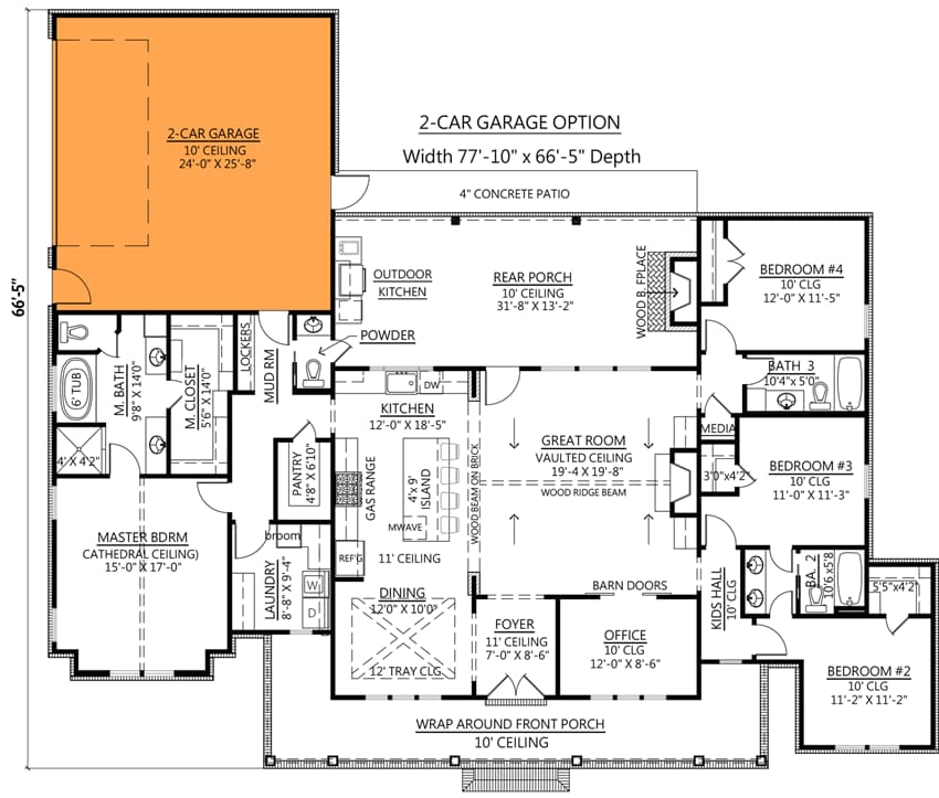
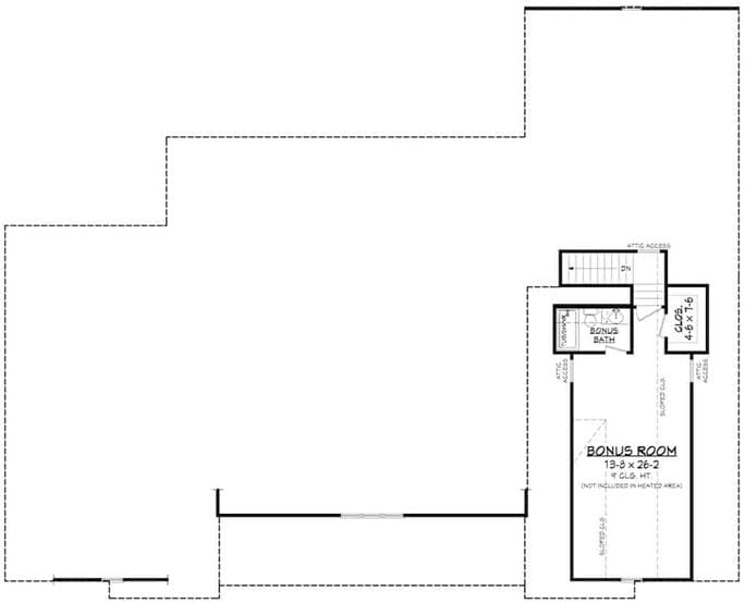
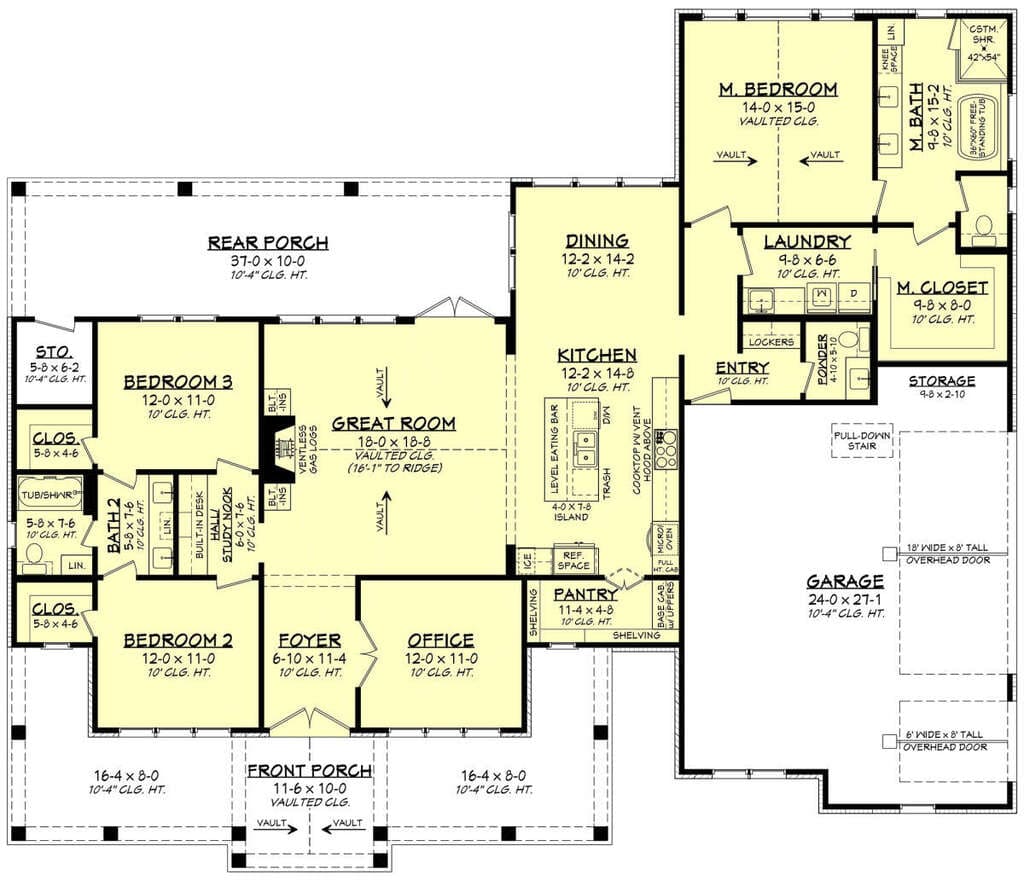
1. Plan 56478SM by Architectural Designs
Front View

Ground Floor

Room above Garage

Room above Garage

Basement

Car Garage

Quick Look:
- No. of Floors: 1-2 storey.
- Cars: 2-3 cars, attached garage of 930 sq. ft.
- Bedrooms: 4-5 beds.
- Area: 2400 sq. ft. (First floor – 2400 sq. ft., Rear porch – 416 sq. ft., Front porch – 318 sq. ft., Bonus – 632 sq. ft.)
- Bathrooms: 3.5-4.5 baths. (3-4 full baths and 1 half bath)
- Height: 10’ floor-to-floor height.
- Primary Pitch Roof: 9 on 12.
- Secondary Pitch Roof: 12 on 12.
- Foundation: Standard foundation of slabs, crawl, and basement.
- Width: 77′ 2″
- Depth: 77′ 9″
- Maximum Ridge Height: 28′ 8″
Other Details:
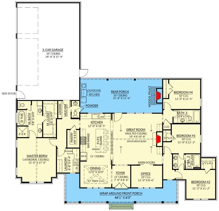
- This is a simple farmhouse plans with 4-bedrooms with two gables on the front porch.
- The walk-in pantry is present in the kitchen with a large kitchen island and seating space.
- The three secondary rooms are on the right of the house with two sharing a common bath and one having an attached bath.
- A powder room is accessible from the rear porch and the mudroom, through pocket doors.
- The 3-car garage is divided into two parts. One with a 2-car slot and one with a 1-car opening.
- Enough expansion space is available above the garage in these modern farmhouse plans.
- The bigger version of this layout is 2841 sq. ft. in area, and the smaller version is 2291 sq. ft. in area.
2. Plan 4534-00072 by House Plans
Front View

Ground Floor Plan

Basement

Quick Look:
- No. of Floors: 1 storey.
- Garage: 2 cars. Attached garage of 600 sq. ft.
- Area: 2085 sq. ft.
- Bedrooms: 3
- Bathrooms: 2.5 (2 full baths and 1 half bath)
- Foundation: Slab, Basement, and Crawlspace.
- Depth: 74’7”
- Width: 67’10”
- Height: 26’ (10’ floor-to-floor height)
- Roof Pitch: 9:12
Other Details:
- This modern farmhouse house plans has enormous outdoor living space with a wrap-around porch at entrance.
- The pedestrian door leads to the backyard and mudroom.
- Inviting front entry with open floor plan.
- The vaulted ceiling is present in the living room with a fireplace.
- Split layout in the bedroom of these modern farmhouse plans, creating a private corner for you. You can also see a small house plan.
- The master bedroom has an attached bathroom with a walk-in closet and a vaulted ceiling.
- One common linen space for the two secondary bedrooms.
3. Plan 142-1244 by The Plan Collection
Front View

Ground Floor Plan

Bonus Floor

Quick Look:
- No. of Floors: 1 storey.
- Garage: 3 cars. Attached garage of 920 sq. ft.
- Area: 3086 sq. ft. (Bonus Room – 525 sq. ft.; Porch – 688 sq. ft.)
- Bedrooms: 4
- Bathrooms: 3.5 (3 full baths and 1 half bath)
- Roof Type: Gable.
- Depth: 69′ 0″
- Width: 85′ 8″
- Ceiling Height: 10’/ 9’/ 11’
- Roof Pitch: 9:12/ 12:12/ 3:12/ 4:12
Other Details:
- These small farmhouse plans are welcoming and covered porches.
- Big windows on the front elevation.
- The front office is on your right as you enter the lobby, and a game room is on your left.
- The open floor plan is incorporated with a fireplace and ceiling beams.
- Three secondary rooms at the front of the house have split bathrooms.
- Vinyl and wood siding with stone finishing adorn the exterior wall.
- These modern farmhouse plans are L-shaped.
4. Plan 56521SM by Architectural Designs
Front View

Ground Floor Plan

First Floor Plan

Basement

Quick Look:
- No. of Floors: 1-2 storey.
- Garage: 3 cars. Attached garage of 995 sq. ft.
- Area: 3127 sq. ft. (Bonus Room – 698 sq. ft.; Porch – 1,420 sq. ft., First Floor – 3127 sq. ft.)
- Bedrooms: 4
- Bathrooms: 3.5 (3 full baths and 1 half bath)
- Foundation: Slab, Basement, and Crawlspace.
- Depth: 97′ 10″
- Width: 92′ 1″
- Height: 31′ 0″ (Floor to Floor room height – 10’; Floor to Floor garage height – 9’)
- Roof Pitch: Primary Pitch – 9:12; Secondary Pitch – 4:12
Other Details:
- The small farmhouse plans have two metal gables above the 8’4” deep front side porch.
- There is also a home office with a sliding barn door.
- The farmhouse floor plan is open with an 18’ high vaulted ceiling above the kitchen.
- Expansion space is available above the garage.
- The split bedroom maximizes privacy.
- The master bathroom has a vaulted ceiling with a walk-in closet and a laundry area. While the other three bedrooms have a common bath while one is attached.
- The smaller version of this modern farmhouse is 2400 sq. ft. in area.
5. Plan 041-00327 by House Plans
Front View

Ground Floor Plan

Basement

Quick Look:
- No. of Floors: 1 storey.
- Garage: 2 cars. Attached garage of 735 sq. ft.
- Area: 2195 sq. ft.
- Bedrooms: 3
- Bathrooms: 2.5 (2 full baths and 1 half bath)
- Foundation: Slab, Basement, Crawlspace, and Walkout Basement.
- Depth: 63′ 4″
- Width: 74′ 2″
- Height: 26′ 0″ (Floor to Floor room height – 10’)
- Roof Pitch: 8:12
Other Details:
- The modern farmhouse house plan contains 3 bedrooms and 2 bathrooms with a living space.
- There is a Jack and Jill bathroom, a master bedroom, and a split bedroom.
- There is a kitchen island in the open floor plan of the kitchen and the house.
- The laundry area is also present on the ground floor.
- The home office is also included in the design.
- The exterior framing is 2×4.
- The farmhouse floor plan is suitable for all sorts of lifestyles.
6. Plan 142-1265 by The Plan Collections
Front View

Ground Floor Plan

Basement

Bonus Plan

Quick Look:
- No. of Floors: 1 storey.
- Garage: 2 cars. Attached garage of 663 sq. ft.
- Area: 1448 sq. ft. (Bonus Room – 468 sq. ft., Porch – 323 sq. ft.)
- Bedrooms: 2
- Bathrooms: 2
- Roof Type: Gable and Dormer.
- Depth: 48′ 6″
- Width: 69′ 0″
- Ceiling Height: 10’/ 9’/ 8’
- Roof Pitch: 4:12/ 8:12/ 12:12
Other Details:
- This modern farmhouse is enchanted by vertical siding and a covered entrance porch.
- There is also a spacious utility area and a mudroom
- Big walk-in pantry in the kitchen with a kitchen island.
- The exterior wall is decorated with vinyl and wood sidings. While the roof is metallic.
- The master bedroom includes a walk-in closet with a master bedroom.
- The lot type of house is a corner.
- A split bathroom is included in this modern farmhouse.
7. Plan 16916WG by Architectural Designs
Front View

Ground Floor Plan

Bonus Plan

Car Garage

Bonus Plan With Garage

Quick Look:
- No. of Floors: 1-2 storey.
- Garage: 2-3 cars. Attached garage of 555 sq. ft.
- Area: 1988 sq. ft. (Bonus Room – 421 sq. ft., Porch – 226 sq. ft., Lanai – 267 sq. ft.)
- Bedrooms: 3-4
- Bathrooms: 2.5-3.5 (Full Bathroom – 2-3; Half Bathroom – 1)
- Foundation: Slab, Crawl, Basement, and Walkout.
- Depth: 56′ 3″
- Width: 80′ 3″
- Ceiling Height: First Floor – 9’, Second Floor – 8’
- Ridge Height of Roof: 26’9” (Primary Pitch of Roof – 12:12, Secondary Pitch of Roof – 2:12)
Other Details:
- The front porch of these modern farmhouse plans is L-shaped, and the garage has a side entrance in it.
- The living room is vaulted and two French doors at the back take to the lanai.
- The standard exterior wall is 2×4 and option one is 2×6.
- Stick-type roof framing is used.
- 4’x8’ kitchen island is accessible through the living room. A 6’x3’ walk-in pantry is also concealed under the sliding barn door in the kitchen.
- Lanai is directly accessible through the master bedroom, which also includes a 5-fixture bathroom and walk-in closet.
- The smaller version of this farmhouse plan has an area of 1721 sq. ft.
8. Plan 963-00627 by House Plans
Front View

Ground Floor Plan

First Floor

Quick Look:
- No. of Floors: 2 storeys.
- Garage: 3 cars. Attached garage of 937 sq. ft.
- Area: 3205 sq. ft. (Bonus – 970 sq. ft., Ground Floor – 1943 sq. ft., First Floor – 1262 sq. ft.)
- Bedrooms: 4
- Bathrooms: 3.5 (Full Bathroom – 3; Half Bathroom – 1)
- Foundation: Slab, Crawl, Basement, and Walkout.
- Depth: 86′
- Width: 62′
- Height: 32’
- Ceiling Height: Ground Floor – 9’, First Floor – 8’
- Ridge Pitch: 12:12
Other Details:
- The modern farmhouse is barn dominium inspired with high ceilings.
- Wrap-around porch with curb appeal.
- The exterior is T-shaped with board and batten siding. And the wooden exterior frame is 2×6.
- The garage has double sided-entry and a covered porch.
- Mudroom is attached to the garage and half bathroom.
- The kitchen island is centrally placed and houses 5-people seating with a walk-in pantry.
- The upper floor of this modern farmhouse has four rooms and a loft, with each room having two windows, a walk-in closet, and a bathroom.
9. Plan 206-1002 by The Plan Collection
Front View

Ground Floor Plan

Basement

Bonus Room

Quick Look:
- No. of Floors: 1 storey.
- Garage: 2 cars. Attached garage of 632 sq. ft.
- Area: 2629 sq. ft. (Bonus – 339 sq. ft., Porch – 782 sq. ft.)
- Bedrooms: 3
- Bathrooms: 2.5 (Full Bathroom – 2; Half Bathroom – 1)
- Depth: 62′ 2″
- Width: 80′ 10″
- Ridge Height: 26′ 3″
- Ceiling Height: Ground Floor – 10’, First Floor – 9’
- Ridge Pitch: 9:12
Other Details:
- This modern farmhouse plan is developed in colonial style with an open floor plan and dormer/ gable type roof.
- Metal and asphalt shingles are used on the roof.
- The framing of the exterior wall is 2×4.
- The kitchen includes a kitchen island, a walk-in pantry, a butler’s pantry, and an eating peninsula.
- The building is in corner lot style.
- Vinyl and brick wood siding is used as material for the exterior walls of this modern farmhouse.
- The master bedroom has an attached split bedroom and bath, with a walk-in closet.
10. Plan 623113DJ by Architectural Designs
Front View

Ground Floor Plan

Quick Look:
- No. of Floors: 1 storey.
- Garage: 1-3 cars. Attached garage of 1453 sq. ft.
- Area: 2113 sq. ft. (Porch – 1667 sq. ft.)
- Bedrooms: 3
- Bathrooms: 2
- Depth: 100′ 0″
- Width: 60′ 0″
- Foundation: Slab, Basement, Crawl, and Walkout.
- Ceiling Height: 14’
- Ridge Pitch: Primary Pitch – 10:12; Secondary Pitch – 3:12
Other Details:
- This modern farmhouse plan is in Barndominium style with a 9’ deep wrap-around porch.
- The ceiling is high with a 14’ wall boasting an open floor plan.
- A kitchen island and a huge walk-in pantry adorn the kitchen.
- The master bedroom includes a walk-in closet, vanity, and attached bathroom.
- Two secondary bedrooms are connected with the living hall having a common bathroom.
- The garage of these modern farmhouse plans has 3 doors and enormous space for storage.
- 2×6 is the standard for exterior walls.
How To Build A Modern Farmhouse For Yourself!
Whether you want a wrap-around porch, an expandable floor, or a grand garage, a modern farmhouse plan is for all of them. A simple farmhouse plans is enough to create a combination of rustic, classic country, or modern appeal. So, now it’s your turn to invest in future farmhouse plans.
FAQs
For modern farmhouse plans, you need to make them relaxing and comfortable with smooth line finishes, a glossy look, and a natural color palette. Keep it less rustic and more contemporary in design.
No, because a modern farmhouse is generally one or two storeys with a wrap-around porch and living area.
Natural lighting in each room.
The living room must have floor-to-ceiling windows.
Doors should be wide-angled for views.
The kitchen must have big windows.
Upstairs foyers must have bay windows.
Use locally available bricks, wood, and stones for the facade, floor, fireplace, quoins, and cornices. Metal roofing is also common in modern farmhouse plans.
Modern farmhouse plans are called so because they have a rustic look with clean aesthetics. The term ‘modern farmhouse’ originated as an architectural style defined by white-colored board and batten sidings, with metal gable roofs.
More from The Architecturesstyle
About the Author: Saili Sawantt
Saili, once an architect, has seamlessly transitioned into the world of writing. With a background in architectural writing, content strategy, and curation, she now brings a unique perspective to fashion. For the past three years, Saili has collaborated with various multimedia publication houses, design firms, studios, organizations, luxury brands, and educational institutions. Beyond her professional endeavors, Saili is an avid reader and an adventurous traveler, channeling her experiences into her work.


